SERIE 120 – DOS ALTURAS

125 m²

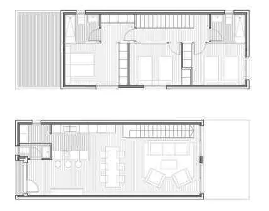
Este modelo se destaca por su configuración de 3 o 4 dormitorios y 2 baños, con una distribución de estructura de acero galvanizado tubular en planta baja y una altura, brindando un total de 125 metros cuadrados de espacio habitable. 

Esta vivienda se basa en la ingeniosa utilización de cuatro estructuras de acero galvanizado tubular de Cases Caliu, lo que la convierte en la solución ideal para parcelas de tamaño ajustado, al maximizar el espacio disponible a un buen precio.​

Al configurarlo con una planta baja  y una segunda planta, se crea un hogar con bonitas vistas panorámicas, más privacidad y más separación de áreas por sus funciones.

​Esta distribución te proporcionará un hogar de «Smart Design» con todas las comodidades que puedas desear, siempre con un enfoque en la sostenibilidad. La serie 120 es la elección perfecta cuando la familia crece y se requieren espacios más amplios.

​Además, al igual que todos nuestros modelos, puedes personalizarlo a tu medida. Puedes elegir la configuración de fábrica o ajustar el modelo según tus preferencias, aprovechando las diversas características disponibles. ¡Hazlo tuyo y crea un hogar perfectamente adaptado a tus necesidades!

Superfície

125 m²

Distribución

Salón-comedor-cocina, 3 dormitorios y 2 baños.

Precio

184.565 € (IVA no incluido)
Ir al contenido